Tours demain

2025 - concours restreint pour le Crédit Agricole - non lauréat

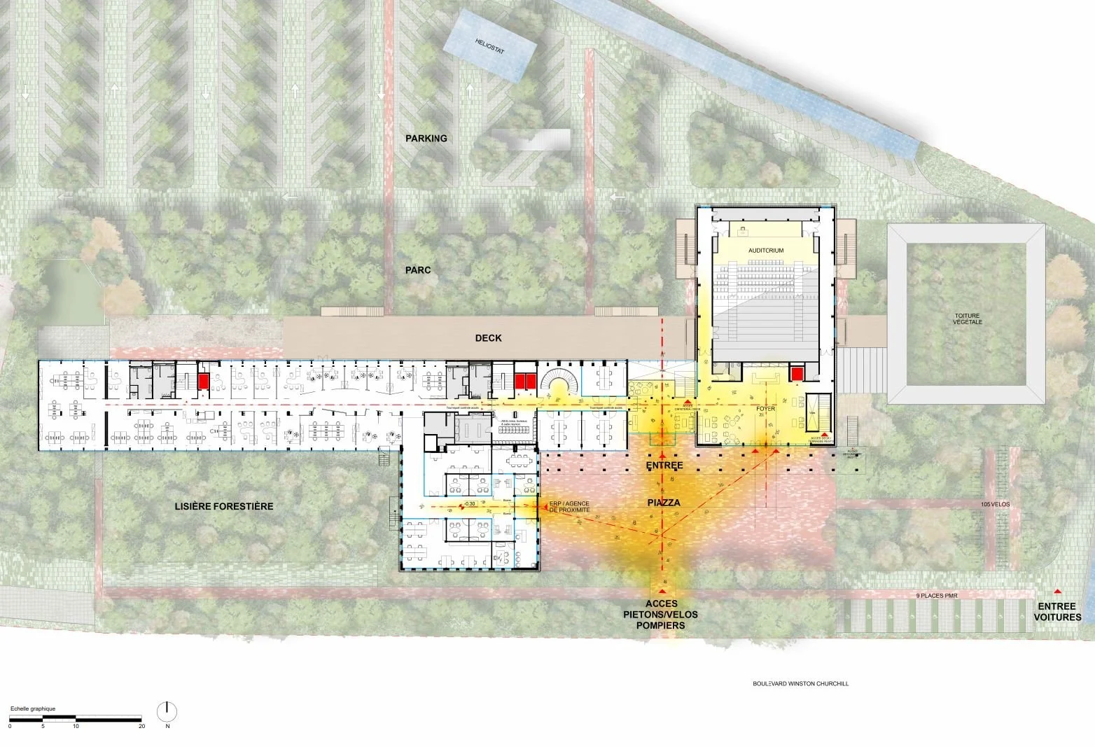
Ce projet de restructuration transforme un site existant en un lieu de travail ouvert, lisible et durable, capable d’évoluer dans le temps sans perdre en cohérence.
Plutôt que de démolir, le projet s’appuie sur les qualités de l’existant pour en révéler le potentiel, en optimisant les usages, les circulations et le confort des usagers.

L’organisation s’articule autour d’une piazza centrale généreuse, véritable cœur du site, et d’un Deck habité qui relie l’ensemble des bâtiments. Cette colonne vertébrale structure les parcours, fluidifie les échanges et transforme les déplacements quotidiens en une expérience simple et intuitive.

Le paysage devient un levier majeur du projet. Un jardin continu, arboré et perméable remplace les surfaces minérales, reconnecte le site à sa topographie et crée un environnement de travail apaisé, favorable au bien-être comme à la performance. Chaque espace extérieur est pensé comme un usage : se rencontrer, travailler autrement, faire une pause.

Pensé dans une logique de long terme, le projet intègre réversibilité, sobriété constructive et réemploi des ressources. Il anticipe les mutations des modes de travail et permet au site de s’adapter dans le temps, sans transformations lourdes.

L’ensemble compose une architecture claire, évolutive et accueillante, au service des utilisateurs comme de l’image de l’institution : un lieu capable d’attirer, de fédérer et de durer.

Précédent
Précédent

Itana Tech Campus // Campus d'innovation mixte

Suivant
Suivant

Ensemble hôtelier // Trois hôtels au coeur de Casablanca Finance City